○湖西市公共下水道取付管設置要綱
平成31年4月1日
告示第128号
湖西市公共下水道取付管等設置要綱(平成8年湖西市告示第102号)の全部を改正する。
(趣旨)
第1条 この要綱は、湖西市公共下水道に係る取付管の設置に関し必要な事項を定めるものとする。
(1) 排水設備 下水道法(昭和33年法律第79号。以下「法」という。)第10条第1項に規定する排水設備をいう。
(2) 取付管 排水設備から下水道管に接続する排水管をいう。
(3) 受益地 公共下水道への接続が可能である土地をいう。
(4) 受益者 下水道管への接続が可能である区域に存する土地の所有者並びに家屋の所有者及び借家人をいう。
(取付管の設置基準)
第3条 取付管は、一の受益地(一体化した複数の地番の土地を同一の者が所有し、使用し、又は占有する場合にあっては、当該複数の地番の土地を一の受益地とみなす。以下同じ。)に対し1箇所設置するものとする。
2 前項の規定にかかわらず、次に掲げる場合においては、一の受益地に取付管を2箇所以上設置することができる。
(1) 排水管の勾配により1箇所の取付管で汚水を排除することができないとき。
(2) 一の受益地に所有者の異なる居住家屋が2戸以上あるとき。
(3) 前2号に掲げるもののほか、土地、家屋等の利用状況により必要と認めるとき。
3 特定事業場(法第12条の2第1項に規定する特定事業場をいう。)の汚水を下水道管に流入させる場合においては、市長と協議し、指定された第一枡(取付管と排水設備を接続する枡をいう。以下この項において同じ。)を設置しなければならない。ただし、公共下水道のマンホールから直接取付管を設置する場合においては、第一枡の設置を要しない。
(取付管の構造)
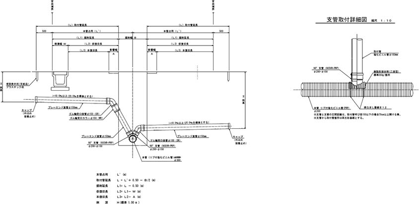
第4条 設置する取付管の構造は、湖西市取付管標準構造図(別図)によるものとし、次に掲げる条件の全てを満たすものとする。
(1) 取付管の勾配は、1パーセント以上10パーセント以下の範囲に収めるものとする。
(2) 取付管の管径は、150ミリメートルを標準とする。ただし、排水設備の管径が150ミリメートル以上の場合にあっては、当該排水設備の管径以上の取付管を設置するものとし、排除する汚水の量が多量であり、150ミリメートルの管径で能力不足となる場合にあっては、市長と協議の上、管径を決定するものとする。
(3) 取付管の土被りは、受益地側で1.0メートルを標準とする。ただし、やむを得ない事情がある場合は、この限りでない。
(取付管の設置に係る施工上の基準)
第5条 取付管の設置に係る施工上の基準は、次に掲げるものとする。
(1) 公道又は私道(側溝、水路を含む。)の境界から受益地に原則として50センチメートル入り込んだところまでの施工とする。
(2) 取付管は、受益地側で排水設備が接続するまでキャップ止めとする。
(3) 取付管の設置位置の表示は、設置時に杭又はピンにて正確に表示する。
(4) 完成図面には上流側マンホールの中心からの距離及び受益地への進入位置を表示する。
(市が行う取付管の設置)
第6条 市は、法第4条第1項の事業計画に定めた区域内の受益地について、下水道管設置工事と同時施工の場合に限り、取付管の設置を行うものとする。
(市以外が行う取付管の設置)
第8条 第6条の規定にかかわらず、受益者が当該受益者の受益地に取付管を設置しようとするときは、法第16条の規定により市長の承認を受けなければならない。
(費用負担)
第9条 市が取付管の設置をする場合における当該設置に要する費用は、市が負担するものとする。ただし、既設の取付管の位置を変更する場合においては、受益者の負担とする。
(取付管の維持管理)
第10条 市が所有する取付管の維持管理は、市が行うものとし、当該取付管を設置した土地に係る地代は無償であるものとする。ただし、故意又は過失により破損を生じ使用不可能となった場合には、当該破損生じさせた者の責任においてこれを補修しなければならない。
(補則)
第11条 この要綱に定めるもののほか、必要な事項は、別に定める。
附則
1 この要綱は、平成31年4月1日から施行する。
2 この要綱の施行の日(以下「施行日」という。)前に公共下水道の供用を開始した一の受益地であって、取付管が設置されていない場合にあっては、施行日から5年間は、改正後の第6条の規定にかかわらず、市が取付管の設置を行うことができる。
附則(令和3年4月1日告示第81号)
1 この要綱は、公布の日から施行する。
2 この要綱の施行の際、この要綱による改正前の様式の用紙で、現に残存するものは、所要の修正を加え、なお使用することができる。
別図(第4条関係)
湖西市取付管標準構造図 縮尺 1:20
(本管―下水道用リブ付硬質塩化ビニル管)

(令3告示81・一部改正)

